CORRECCIÓN de errores de la Resolución de 7 de octubre de 2025, de la Dirección General de Sostenibilidad, por la que se formula informe de impacto ambiental al proyecto de acondicionamiento de edificaciones para almazara, en el término municipal de Badajoz, cuya promotora es Cano Badajoz, SL. Expte.: IA24/0892.
DOE Número: 212
Tipo: Ordinario
Fecha Publicación: martes, 04 de noviembre de 2025
Apartado: III OTRAS RESOLUCIONES
Organismo: CONSEJERÍA DE AGRICULTURA, GANADERÍA Y DESARROLLO SOSTENIBLE
Rango: CORRECCIÓN
Descriptores: Impacto ambiental.
Página Inicio: 59920
Página Fin: 59921
Otros formatos:
TEXTO ORIGINAL
Apreciado error en la Resolución de 7 de octubre de 2025, de la Dirección General de Sostenibilidad, por la que se formula informe de impacto ambiental al proyecto de acondicionamiento de edificaciones para almazara, en el término municipal de Badajoz, cuya promotora es Cano Badajoz, SL, publicada en el Diario Oficial de Extremadura número 200, de 17 de octubre, se procede a su oportuna rectificación:
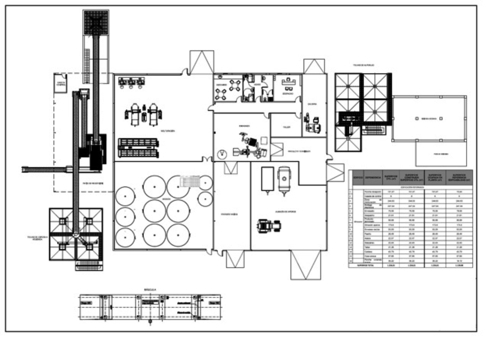
En la página 56254:
— Donde aparece el siguiente plano de la almazara:

— Deben aparecer los siguientes planos de la situación reformada de la almazara:


Mérida, 29 de octubre de 2025.
El Director General de Sostenibilidad,
GERMÁN PUEBLA OVANDO
Nota: Este documento carece de valor jurídico y puede contener anexos. Para consultar la versión oficial y auténtica acceda al fichero PDF del DOE.