RESOLUCIÓN de 27 de noviembre de 2025, de la Dirección General de Sostenibilidad, por la que se formula informe de impacto ambiental al proyecto de construcción de punto limpio en Mérida (Badajoz) y cuyo promotor es el Ayuntamiento de Mérida. Expte.: IA25/1163.
TEXTO ORIGINAL
La Ley 16/2015, de 23 de abril, de protección ambiental de la Comunidad Autónoma de Extremadura, en su artículo 73 prevé los proyectos que deben ser sometidos a evaluación ambiental simplificada por el órgano ambiental a los efectos de determinar que el proyecto no tiene efectos significativos sobre el medio ambiente, o bien, que es preciso su sometimiento al procedimiento de evaluación de impacto ambiental ordinaria, regulado en la subsección 2.ª de sección 2.ª del capítulo VII, del título I, de la ley, por tener efectos significativos sobre el medio ambiente.
El proyecto de construcción de punto limpio en Mérida (Badajoz), cuyo promotor es el Ayuntamiento de Mérida, se encuadra en el grupo 9. Otros proyectos , epígrafe b) Instalaciones de eliminación o valorización de residuos no incluidas en el anexo I, excepto la eliminación o valorización de residuos propios no peligrosos en el lugar de producción , del anexo V de la Ley 16/2015, de 23 de abril, de protección ambiental de la Comunidad Autónoma de Extremadura.
Es órgano competente para la formulación del informe de impacto ambiental relativo al proyecto, la Dirección General de Sostenibilidad de la Consejería de Agricultura, Ganadería y Desarrollo Sostenible de conformidad con lo dispuesto en el artículo 7.1.d) del Decreto 233/2023, de 12 de septiembre, por el que se establece la estructura orgánica de la Consejería de Agricultura, Ganadería y Desarrollo Sostenible y se modifica el Decreto 77/2023, de 21 de julio, por el que se establece la estructura orgánica básica de la Administración de la Comunidad Autónoma de Extremadura.
Los principales elementos del análisis ambiental del proyecto son los siguientes:
1. Objeto, descripción y localización del proyecto.
El objetivo del proyecto es la construcción de un punto limpio para la recogida selectiva de residuos domésticos con el fin de mejorar la gestión de residuos en este municipio.
El promotor del proyecto es el Ayuntamiento de Mérida.
El proyecto, en síntesis, tiene por objeto la construcción de un punto limpio cerrado y acceso controlado, dotado de zona de aparcamiento, zona de descarga, zona de almacenamiento y caseta de control de acceso, con porche cubierto en la zona de almacenamiento.
La parcela donde se ubica el proyecto está en el Polígono Industrial el Prado, c/ Pamplona, n.º 10, de Mérida (Badajoz), con referencia catastral 6320005QD2162S. Tiene una superficie total de 19.730 m2, construidos 3.144 m2, quedando el resto de superficie en terreno natural con un acceso pavimentado que la divide la parte no construida en dos. Para la construcción del punto limpio se utilizará la parte de la parcela no construida.
2. Tramitación y consultas.
Con fecha 6 de agosto de 2025, el Ayuntamiento de Mérida remitió a la Dirección General de Sostenibilidad, el documento ambiental del proyecto con objeto de determinar la necesidad de sometimiento al procedimiento de evaluación de impacto ambiental.
Dando cumplimiento a lo establecido en el artículo 75.1 de la Ley 16/2015, de 23 de abril, de protección ambiental de la Comunidad Autónoma de Extremadura, con fecha 18 de agosto de 2025, la Dirección General de Sostenibilidad realiza consultas a las Administraciones Públicas afectadas y las personas interesadas que se relacionan en la tabla adjunta. Se han señalado con una X aquellas Administraciones Públicas y personas interesadas que han emitido respuesta.
|
Relación de consultados
|
Respuestas recibidas
|
|---|
|
Servicio de Conservación de la Naturaleza y Áreas Protegidas
|
X
|
|
Ayuntamiento de Mérida
|
X
|
|
Dirección General de Bibliotecas, Museos y Patrimonio Cultural
|
X
|
|
Dirección General de Urbanismo y Ordenación del Territorio. Servicio de Ordenación del Territorio.
|
X
|
|
Dirección General de Urbanismo y Ordenación del Territorio. Servicio de Urbanismo.
|
X
|
|
Servicio de Ordenación y Gestión Forestal. Dirección General de Gestión Forestal, Caza y Pesca.
|
X
|
|
Servicio Extremeño de Salud
|
X
|
|
Secretaría General de Interior, Emergencias y Protección Civil
|
X
|
|
Confederación Hidrográfica del Guadiana
|
-
|
|
Sociedad Española de Ornitología, SEO Bird/Life
|
-
|
|
Asociación para la Defensa de la Naturaleza y de los Recursos de Extremadura (ADENEX)
|
-
|
|
Ecologistas en Acción
|
-
|
|
Asociación Ecologistas Extremadura
|
-
|
|
AMUS
|
-
|
|
GREENPEACE
|
-
|
|
Fundación Naturaleza y Hombre
|
-
|
El resultado de las contestaciones de las distintas administraciones públicas se resume a continuación:
— Con fecha 4 de septiembre de 2025, la Secretaría General de Interior, Emergencias y Protección Civil emite informe en el que expresa que examinada la documentación, no considera necesario emitir un informe de vulnerabilidad pormenorizado.
— El 10 de septiembre de 2025, el Servicio de Urbanismo de la Dirección General de Urbanismo y Ordenación del Territorio emite informe que se resume a continuación:
La actuación se localiza en suelo urbano, por lo que no requiere de la previa calificación rústica prevista en el artículo 69 de la Ley 11/2018, de 21 de diciembre, de ordenación territorial y urbanística sostenible de Extremadura.
— Con fecha 11 de septiembre de 2025, el Servicio Extremeño de Salud remite informe indicando que han revisado el documento y desde un punto de vista sanitario se informa favorablemente sin emitir alegaciones al respecto.
— El día 12 de septiembre de 2025, el Servicio de Ordenación del Territorio de la Dirección General de Urbanismo y Ordenación del Territorio emite informe con la siguiente conclusión:
No se detecta afección sobre ningún instrumento de ordenación territorial en vigor (Plan Territorial, Plan de Suelo Rústico, Plan Especial de Ordenación del Territorio o Proyecto de Interés Regional).
— Con fecha 15 de septiembre de 2025, el Servicio de Conservación de la Naturaleza y Áreas Protegidas de la Dirección General de Sostenibilidad informa como se resume a continuación:
La actuación no se encuentra dentro de los límites de ningún espacio incluido en Red Natura 2000, ni se prevé que pueda afectar de forma apreciable a los mismos o a sus valores ambientales siempre que se cumplan las medidas preventivas, protectoras y correctoras indicadas en la documentación ambiental aportada por el promotor.
— El día 25 de septiembre de 2025, el Ayuntamiento de Mérida informa acerca de los condicionantes urbanísticos de su competencia:
El proyecto redactado cumple con las condiciones urbanísticas de aplicación.
— Con fecha 19 de octubre de 2025, la Dirección General de Bibliotecas, Museos y Patrimonio Cultural emite el informe y condicionado que se resume como sigue:
El informe indica que los terrenos afectados están dentro del Yacimiento Arqueológico emeritense, en la Zona IV Protección Cautelar, nivel asignado a aquellas áreas que con destino urbano en la que la posibilidad de aparición de restos arqueológicos es reducida, si bien es posible la aparición de elementos aislados de interés arqueológico. Además, se dice que en las parcelas afectadas no se tiene conocimiento de restos arqueológicos ni consta la realización de intervenciones arqueológicas previas.
Emite informe favorable condicionando la ejecución de la obra al preceptivo seguimiento arqueológico de los movimientos de tierra por un equipo de arqueología contratado al efecto, y condiciona la licencia municipal a la aprobación por el Consorcio Ciudad Monumental de Mérida. Las medidas exigidas se detallan en el apartado de Condiciones y medidas del presente informe.
— El día 22 de octubre de 2025, el Servicio de Ordenación y Gestión Forestal informa que no tiene competencias en suelo urbano. En cualquier caso, se emite informe favorable al proyecto por la ausencia de efectos sobre patrimonio y bienes o valores forestales.
3. Análisis del expediente.
Una vez analizada la documentación que obra en el expediente, y considerando las respuestas recibidas a las consultas, se realiza el siguiente análisis para determinar la necesidad de sometimiento del proyecto al procedimiento de evaluación de impacto ambiental ordinaria previsto en la subsección 2.ª de la sección 2.ª del capítulo VII del título I, según los criterios del anexo X, de la Ley 16/2015, de 23 de abril, de protección ambiental de la Comunidad Autónoma de Extremadura.
3.1. Características del proyecto.
El objetivo del proyecto es la construcción de un punto limpio para la recogida selectiva de residuos domésticos con el fin de mejorar la gestión de residuos en el municipio de Mérida.
Tiene por objeto la construcción de un punto limpio cerrado y acceso controlado, dotado de zona de aparcamiento, zona de descarga, zona de almacenamiento y caseta de control de acceso, con porche cubierto en la zona de almacenamiento. El resto de la parcela se deja de zona verde para futuras ampliaciones.
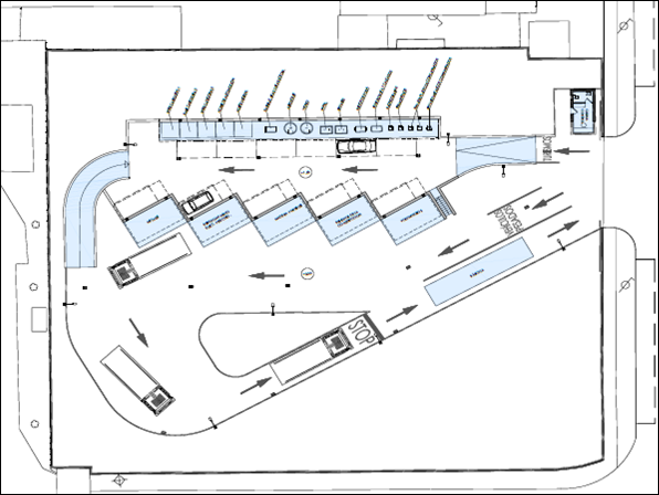
Los elementos principales del proyecto son los siguientes:
— Sistema de videovigilancia con circuito cerrado de cámaras.
— Caseta de recepción con mobiliario interior y zona de aseo con superficie de 20,23 m².
— Cerramiento exterior.
— Red de saneamiento de aguas pluviales y acometida a red general.
— Instalación eléctrica de fuerza y alumbrado.
— Báscula de 14 x 3 hasta 150 toneladas. Incluye ordenador y software de gestión de pesaje totalmente instalado y conectado.
— Zona sobre pavimento hormigonado sobreelevada (+ 1,70 m) cubierta, para depósito de residuos con almacenamiento de baja capacidad.
En esta área se ubicarán los contenedores para el depósito de residuos peligrosos y otros con una necesidad de almacenamiento en contenedores inferiores o igual a 1.000 l. Incluirá cubetos para la contención de posibles derrames aquellos que así lo hagan preceptivo según la normativa RD 656/2017 por el que se regula el Almacenamiento de Productos Químicos. La superficie cubierta será de 98,40 m2.
— Zona cubierta a nivel de la calle para la ubicación de contenedores de gran capacidad.
— 4 contenedores para carga sobre amplirol con capacidad de carga de 30 m².
— 8 raíles de perfil metálico para posicionamiento de contenedores.
Las cinco dársenas de vertido de contenedores grandes propuestas se formalizan con un muro de contención en zig-zag y una cubierta metálica autoportante que protege de la lluvia a cada contenedor. Las cubiertas protegerán de la lluvia tanto los residuos contenidos dentro de los contenedores, como las áreas elevadas para descarga de residuos. El muro de contención sobresaldrá 35 cm por encima del nivel superior del terreno.

Planta del punto limpio. Fuente: Proyecto del promotor.
3.2. Descripción del lugar.
La parcela es propiedad del Ayuntamiento de Mérida, está en el Polígono Industrial el Prado, c/ Pamplona n.º 10, de Mérida (Badajoz), con referencia catastral 6320005QD2162S. Tiene una superficie total de 19.730 m2, de los que 3.144 son construidos, quedando el resto de superficie en terreno natural con un acceso pavimentado que la divide la parte no construida en dos. Para la construcción del punto limpio se utilizará la parte de la parcela no construida. Dentro del PGOU se clasifica como suelo urbano consolidado, siendo de aplicación la Ordenanza Dotacional, por lo que tiene cabida el uso pretendido.
El proyecto no se encuentra dentro de los límites de ningún espacio incluido en Red Natura 2000.
3.3. Estudio de alternativas.
Se descarta la alternativa de no actuación por considerar que el punto limpio es un servicio necesario para la ciudad.
De las alternativas posibles de ubicación del punto limpio se elige esta al considerar:
— Se trata de suelo Urbano Consolidado, el cual dispone de todos los servicios urbanísticos y está ubicado en una zona industrial.
— No se han identificado afecciones relevantes al medio ambiente por el desarrollo de proyecto en la ubicación propuesta.
— La parcela permite futuras ampliaciones de las instalaciones para adaptarse al posible crecimiento de la demanda o a la actualización de la normativa.
3.4. Características del potencial impacto.
— Red Natura 2000 y Áreas Protegidas.
El proyecto no se encuentra dentro de los límites de ningún espacio incluido en Red Natura 2000.
Se considera que, con la aplicación de medidas preventivas y correctoras, el proyecto no es susceptible de causar degradaciones sobre los hábitats ni alteraciones significativas sobre las especies por las que se han declarado los lugares de la Red Natura 2000, y que resulta compatible con los planes de protección vigentes de las especies presentes.
— Sistema hidrológico y calidad de las aguas.
La zona de actuación dista 800 metros de la Zona Protegida de agua potable Embalse de Montijo , ES040MSPF000206330, y a 700 metros de la zona de policía de cauces. La instalación se proyecta con vertido a la red de saneamiento y completamente aislada en superficie para evitar contaminación por vertidos o aguas pluviales. Con la aplicación de las medidas contempladas, la calidad de las aguas no sufrirá modificación por el desarrollo del proyecto.
— Masas de agua subterránea.
Con relación a las aguas subterráneas, la parcela se encuentra sobre la masa de agua subterránea Vegas Bajas , ES040MSBT000030599 y en el Mapa Hidrogeológico de Extremadura se cataloga el terreno como Depósitos aluviales y terrazas. Permeable . La instalación se proyecta con vertido a la red de saneamiento y completamente aislada en superficie para evitar contaminación por vertidos o aguas pluviales. Con la aplicación de las medidas contempladas en este informe no se prevé afección por el proyecto a esta masa de agua subterránea.
— Suelo.
El suelo puede verse afectado durante la fase de obras por contaminación, compactación y erosión, si bien es un suelo ya antropizado y compactado, donde la contaminación y derrames accidentales están controlados mediante la aplicación de las medidas indicadas en este informe. Por esto se considera un impacto de magnitud leve, que mediante la correcta aplicación de medidas preventivas y/o correctoras se reduce a un impacto aceptable para el medio edáfico.
— Fauna.
No se prevé la alteración de valores faunísticos relevantes debido a la antropización previa de la zona. Con la aplicación de las medidas previstas, se considera que el impacto no será significativo.
— Vegetación.
La zona es suelo urbano con una vegetación limitada por la urbanización del área y las construcciones de forma que el impacto sobre la vegetación no es significativo.
— Paisaje.
El impacto sobre el paisaje es reducido por encontrarse en un polígono industrial.
— Calidad del aire, ruido y contaminación lumínica.
La calidad del aire se verá afectada por la emisión de partículas derivadas del trabajo con maquinaria y por gases derivados de la combustión en los motores de vehículos y maquinaria, tanto en las obras como en la fase de funcionamiento del punto limpio. El ruido proviene igualmente del trabajo con maquinaria. Una vez concluidas las obras parte de esta afección desaparece. No obstante, se incorporan en este informe una serie de medidas para mitigar estos efectos.
— Patrimonio arqueológico y dominio público.
Los terrenos afectados se ubican dentro del yacimiento arqueológico emeritense, en la Zona IV Protección Cautelar, nivel asignado a aquellas áreas que con destino urbano en la que la posibilidad de aparición de restos arqueológicos es reducida, si bien es posible la aparición de elementos aislados de interés arqueológico.
En las parcelas afectadas no se tiene conocimiento de restos arqueológicos ni consta la realización de intervenciones arqueológicas previas, si bien se establecen las medidas que ha indicado la Dirección General de Bibliotecas, Museos y Patrimonio Cultural.
— Consumo de recursos y cambio climático.
La fase de obra supondrá un efecto directo, puntual y negativo sobre el cambio climático, al generarse emisiones debidas a la actividad. Tales impactos se producirán a corto plazo y si bien permanecerán de forma temporal, serán recuperables y reversibles.
— Medio socioeconómico.
El impacto para este medio es positivo por la generación de empleo y de actividad económica, así como por la mejora de la gestión de los residuos en el municipio.
— Sinergias.
Al tratarse de un proyecto localizado en un polígono industrial no se esperan efectos sinérgicos y/o acumulativos como consecuencia de su ejecución.
— Vulnerabilidad del proyecto. Riesgos de accidentes graves o catástrofes.
Con relación al apartado sobre la vulnerabilidad del proyecto, de conformidad con lo estipulado en la Ley 9/2018, de 5 de diciembre, por la que se modifica la Ley 21/2013, de 9 de diciembre, de evaluación ambiental, se cumplirá lo referido a la vulnerabilidad del proyecto frente a catástrofes naturales y accidentes graves del proyecto, así como las medidas para mitigar el efecto adverso significativo sobre el medio ambiente.
En conclusión, se trata de una actividad que no tiene efectos adversos significativos sobre el medio ambiente, siempre que se apliquen las medidas recogidas en el apartado 4 Condiciones y medidas para prevenir, corregir y compensar los efectos sobre el medioambiente . Igualmente, el proyecto no afecta a espacios de la Red Natura 2000. Por ello, del análisis técnico se concluye que no es preciso someter el proyecto a evaluación de impacto ambiental ordinaria.
4. Condiciones y medidas para prevenir, corregir y compensar los efectos sobre el medioambiente.
4.1. Condiciones de carácter general.
Deberán cumplirse todas las medidas protectoras y correctoras descritas en el documento ambiental, en tanto no entren en contradicción con el condicionado del presente informe.
No se realizará ningún tipo de obra auxiliar sin contar con su correspondiente informe, según la legislación vigente.
El incumplimiento de las condiciones de este informe puede ser constitutivo de una infracción administrativa de las previstas en la Ley 16/2015, de 23 de abril, de protección ambiental de la Comunidad Autónoma de Extremadura.
El Servicio de Prevención, Calidad Ambiental y Cambio Climático, en cumplimiento de la Ley 16/2015, de 23 de abril, de protección ambiental de la Comunidad Autónoma de Extremadura, podrá exigir la adopción de nuevas medidas protectoras, correctoras o complementarias, al objeto de evitar o minimizar posibles impactos no detectados ni contemplados en el presente informe.
Si durante el desarrollo del proyecto se detectara la presencia de alguna especie incluida en el Catálogo Regional de Especies Amenazadas de Extremadura que pudiera verse afectada por el mismo, se estará a lo dispuesto por el personal técnico de la Dirección General de Sostenibilidad, previa comunicación de tal circunstancia.
Se informará a todo el personal implicado en la ejecución de este proyecto del contenido del presente informe de impacto ambiental, de manera que se ponga en su conocimiento las medidas que deben adoptarse a la hora de realizar los trabajos. Asimismo, se dispondrá de una copia del presente informe en el lugar donde se desarrollen los trabajos.
Deberá tenerse en cuenta la normativa en materia de incendios forestales, Decreto 260/2014, de 2 de diciembre, por el que se regula la Prevención de los incendios forestales en la Comunidad Autónoma de Extremadura y modificaciones posteriores, así como el Decreto 52/2010, de 5 de marzo, por el que se aprueba el plan de lucha contra incendios forestales de la Comunidad Autónoma de Extremadura (Plan INFOEX), y modificaciones posteriores.
Deberá aplicarse toda la normativa relativa a ruidos tanto en fase de obra como de explotación. Se cumplirá la normativa al respecto, entre las cuales se encuentran el Decreto 19/1997, de 4 de febrero, de Reglamentación de Ruidos y Vibraciones de Extremadura y la Ley 37/2003, de 17 de noviembre, del Ruido.
Para el abastecimiento de agua el proyecto prevé emplear la red de distribución de abastecimiento municipal, por lo que el Ayuntamiento deberá conceder la autorización para dicha conexión. Si se decidiera en algún momento realizar el abastecimiento de aguas (o parte de él) directamente del dominio público hidráulico (aguas superficiales o subterráneas), deberá disponer de un título concesional de aguas, cuyo otorgamiento corresponde a la Confederación Hidrográfica del Guadiana y es a quién deberá solicitarse. Las modificaciones en el aprovechamiento de aguas de títulos concesionales en vigor requieren también autorización por parte del organismo.
4.2. Medidas en la fase de ejecución.
No se permite arrojar, depositar, enterrar o incinerar basuras, escombros o residuos de cualquier origen y naturaleza en las zonas de actuación. Se incluyen aquí residuos y derrames producto de operaciones de mantenimiento o reparación de la maquinaria de obra y los residuos que hubiera en el terreno antes del comienzo de la actuación. Se deberá proceder a su retirada, almacenaje en condiciones adecuadas de higiene y seguridad mientras se encuentren en su poder y entrega a un gestor autorizado para su tratamiento, quien deberá registrar y facilitar la acreditación documental de dicha entrega. En todo caso se cumplirá lo establecido en la Ley 7/2022, de 8 de abril, de residuos y suelos contaminados para una economía circular.
Se dispondrá de un plan de actuación que, en caso de vertidos accidentales facilite la acción rápida y eficaz, contando con los medios adecuados (tierras absorbentes, aspiradora de líquidos, etc.) para inertizar vertidos y derrames. Si fuera preciso se procederá a la retirada del suelo afectado y tratamiento por un gestor autorizado.
Los residuos de construcción y demolición que estuvieran en la parcela antes del comienzo de la obra y los que se generen durante la ejecución del proyecto, se deberán separar adecuadamente y entregar a una planta de reciclaje autorizada para su tratamiento, cumpliendo en todo caso lo establecido en el Real Decreto 105/2008, de 1 de febrero, por el que se regula la producción y gestión de los residuos de construcción y demolición, y en el Decreto 20/2011, de 25 de febrero, por el que se establece el régimen jurídico de la producción, posesión y gestión de los residuos de construcción y demolición en la Comunidad Autónoma de Extremadura.
Se ejecutarán las medidas necesarias para conseguir la integración paisajística de todas las instalaciones, mediante el empleo de materiales acordes al entorno, evitando el uso de materiales reflectantes u otros elementos llamativos y de afección paisajística.
No se emplearán herbicidas en las labores de limpieza de la vegetación por el alto riesgo de contaminación de las aguas públicas y el daño a las poblaciones animales silvestres.
En la construcción del cerramiento, se deberá atender a lo dispuesto en el Decreto 226/2013, de 3 de diciembre, por el que se regulan las condiciones para la instalación, modificación y reposición de los cerramientos cinegéticos y no cinegéticos en la Comunidad Autónoma de Extremadura.
El proyecto, exclusivamente en la parte que afecta al término de Mérida, en el caso de la preceptiva legalmente licencia urbanística, deberá ser aprobado por el Consorcio Ciudad Monumental de Mérida, en el marco de la tramitación de la citada licencia municipal, como entidad competente en materia de patrimonio cultural en el término municipal de Mérida, por delegación de la Junta de Extremadura, con carácter previo a la aprobación de aquella licencia, conforme a lo establecido en el artículo 9.39 del indicado Plan Especial.
En las zonas objeto de actuación será preceptivo seguimiento arqueológico de los movimientos de tierra. Esta intervención deberá ser realizada por el promotor a través de equipo de arqueología contratado al efecto, previa autorización por el Consorcio Ciudad Monumental de Mérida del correspondiente proyecto de arqueología.
Si durante el seguimiento o la ejecución de las obras se hallasen restos u objetos de valor arqueológico, el promotor y/o la dirección facultativa de la misma paralizarán inmediatamente los trabajos, tomarán las medidas adecuadas para la protección de los restos y comunicarán su descubrimiento en el plazo de cuarenta y ocho horas a la Consejería de Cultura. Todas las actividades aquí contempladas se ajustarán a lo establecido al respecto en el título III de la Ley 2/99 de Patrimonio Histórico y Cultural de Extremadura y en el Decreto 93/97 regulador de la actividad arqueológica en Extremadura.
4.3. Medidas en fase de explotación.
— En relación a los vertidos:
Las redes de saneamiento deberán ser estancas, para evitar infiltración de las aguas residuales a las aguas subterráneas. Por otro lado, en el caso de que se contemple ejecutar un drenaje de aguas pluviales, se indica:
La red de saneamiento deberá ser separativa (red de saneamiento de aguas residuales separada de la red de drenaje de aguas pluviales). En el supuesto de que vaya a realizarse una red unitaria, se deberá disponer de algún método o dispositivo (por ejemplo, depósito Anti DSU o tanque de tormentas, etc.) cuya función sea evitar el vertido de contaminantes al medio receptor durante sucesos de lluvia.
Se recomienda el empleo de técnicas de drenaje sostenible de aguas pluviales.
Deberá realizarse una adecuada gestión para evitar que las aguas de escorrentía pluvial incorporen contaminación adicional susceptible de contaminar las aguas continentales o cualquier otro elemento del dominio público hidráulico, sin comprometer la consecución de los objetivos medioambientales y el cumplimiento de las normas de calidad ambiental establecidas en el medio receptor conforme a la legislación de aguas.
Deberán habilitarse las correspondientes áreas de almacenamiento para los residuos que llegan al punto limpio, en función de su tipología, clasificación y compatibilidad, para lo cual, el espacio dentro de la instalación estará compartimentado.
En el caso de que se recojan residuos peligrosos debe realizar la comunicación previa a esta Dirección General de Sostenibilidad según el artículo 35 de la Ley 7/2022, de 8 de abril, de residuos y suelos contaminados para una economía circular. Conforme al artículo 21 de esta ley, en el almacenamiento de estos residuos se tendrá en cuenta:
— El lugar destinado al almacenamiento de residuos peligrosos deberá estar protegido de la intemperie y disponer de sistemas de retención de vertidos y derrames. Los contenedores de residuos peligrosos líquidos serán estancos para evitar fugas y entrada de otros contenidos y estarán adecuadamente identificados.
— No superar el tiempo de almacenamiento de seis meses desde que se inicie el depósito de residuos en el lugar de almacenamiento debiendo constar la fecha de inicio en el archivo cronológico y también en el sistema de almacenamiento (jaulas, contenedores, estanterías, entre otros) de esos residuos. La gestión posterior de estos residuos la realizarán empresas que estén registradas conforme a lo establecido en dicha ley.
4.4. Medidas para la restauración una vez finalizada la actividad.
Al final de la vida útil de la instalación se deberá devolver el terreno a su estado original, aplicando las medidas necesarias para que recupere las características iniciales.
— Se desmantelarán todas las instalaciones, entregando los residuos a gestor autorizado.
— Se acondicionará la parcela para que recupere las características que permitan los usos propios de un suelo urbano consolidado
4.5. Programa de vigilancia y seguimiento ambiental.
Se realizará una labor de seguimiento ambiental del proyecto, en la que se verificará la adecuada aplicación de medidas preventivas y correctoras propuestas, informando a esta administración si se estima oportuno. Cualquier incidencia ambiental destacada deberá ser instantáneamente comunicada a las autoridades competentes.
La actividad será sometida a inspección, vigilancia y control a efectos de comprobar que se realice según las condiciones recogidas en este informe de impacto ambiental, a fin de analizar, determinar y asegurar la eficacia de las medidas establecidas, así como de verificar la exactitud y corrección de la evaluación ambiental realizada.
Cualquier incidencia ambiental destacada deberá ser comunicada a la autoridad ambiental a la mayor brevedad posible, emitiendo un informe extraordinario con la descripción de la misma, de las medidas correctoras aplicadas y de los resultados finales observados.
Teniendo en cuenta todo ello, así como la no afección del proyecto a espacios de la Red Natura 2000, esta Dirección General de Sostenibilidad, a propuesta del Servicio de Prevención, Calidad Ambiental y Cambio Climático, resuelve, de acuerdo con la evaluación de impacto ambiental simplificada practicada conforme a lo previsto en la subsección 2.ª de la sección 2.ª del capítulo VII del título I, tras el análisis realizado con los criterios del anexo X de la Ley 16/2015, de 23 de abril, de protección ambiental de la Comunidad Autónoma de Extremadura, mediante la formulación de un informe de impacto ambiental, que no es previsible que el proyecto de construcción de punto limpio en Mérida (Badajoz), cuyo promotor es el Ayuntamiento de Mérida, vaya a producir impactos adversos significativos sobre el medio ambiente, por lo que no se considera necesario someter el proyecto al procedimiento de evaluación de impacto ambiental ordinario.
El informe de impacto ambiental perderá su vigencia y cesará en la producción de los efectos que le son propios si, una vez publicado en el Diario Oficial de Extremadura, no se hubiera procedido a la autorización del proyecto en el plazo de cuatro años desde su publicación.
Su condicionado podrá ser objeto de revisión y actualización por parte del órgano ambiental cuando:
— Se produzca la entrada en vigor de nueva normativa que incida sustancialmente en el cumplimiento de las condiciones fijadas en el mismo.
— Cuando durante el seguimiento del cumplimiento del mismo se detecte que las medidas preventivas, correctoras o compensatorias son insuficientes, innecesarias o ineficaces.
De conformidad con lo dispuesto en el artículo 76.5 de la Ley 16/2015, de 23 de abril, de protección ambiental de la Comunidad Autónoma de Extremadura, el informe de impacto ambiental no será objeto de recurso alguno, sin perjuicio de los que, en su caso, procedan en vía administrativa o judicial frente al acto, en su caso, de autorización del proyecto.
El informe de impacto ambiental será objeto de publicación en el Diario Oficial de Extremadura y en la página web de la Consejería de Agricultura, Ganadería y Desarrollo Sostenible (http://extremambiente.go-bex.es/ ).
El presente informe de impacto ambiental se emite a los solos efectos ambientales y en virtud de la legislación específica vigente, sin perjuicio de aquellas otras autorizaciones sectoriales o licencias que sean necesarias para la ejecución del proyecto.
Mérida, 27 de noviembre de 2025.
El Director General de Sostenibilidad,
GERMÁN PUEBLA OVANDO