RESOLUCIÓN de 15 de diciembre de 2025, de la Dirección General de Sostenibilidad, por la que se formula informe de impacto ambiental al proyecto de construcción de punto limpio en Salorino (Cáceres), cuyo promotor es el Ayuntamiento de Salorino. Expte.: IA25/1170.
TEXTO ORIGINAL
La Ley 16/2015, de 23 de abril, de protección ambiental de la Comunidad Autónoma de Extremadura, en su artículo 73 prevé los proyectos que deben ser sometidos a evaluación ambiental simplificada por el órgano ambiental a los efectos de determinar que el proyecto no tiene efectos significativos sobre el medio ambiente, o bien, que es preciso su sometimiento al procedimiento de evaluación de impacto ambiental ordinaria, regulado en la subsección 2.ª de sección 2.ª del capítulo VII, del título I, de la ley, por tener efectos significativos sobre el medio ambiente.
El proyecto de construcción de punto limpio en la localidad de Salorino (Cáceres), cuyo promotor es el ayuntamiento de Salorino, se encuadra en el grupo 9 Otros proyectos , epígrafe b) Instalaciones de eliminación o valorización de residuos no incluidas en el anexo I, excepto la eliminación o valorización de residuos propios no peligrosos en el lugar de producción , del anexo V de la Ley 16/2015, de 23 de abril, de protección ambiental de la Comunidad Autónoma de Extremadura.
Es órgano competente para la formulación del informe de impacto ambiental relativo al proyecto, la Dirección General de Sostenibilidad de la Consejería de Agricultura, Ganadería y Desarrollo Sostenible de conformidad con lo dispuesto en el artículo 7.1.d) del Decreto 233/2023, de 12 de septiembre, por el que se establece la estructura orgánica de la Consejería de Agricultura, Ganadería y Desarrollo Sostenible y se modifica el Decreto 77/2023, de 21 de julio, por el que se establece la estructura orgánica básica de la Administración de la Comunidad Autónoma de Extremadura.
Los principales elementos del análisis ambiental del proyecto son los siguientes:
1. Objeto, descripción y localización del proyecto.
El objetivo del proyecto es la construcción de un punto limpio para la recogida selectiva de residuos domésticos con el fin de mejorar la gestión de residuos en este municipio.
El promotor del proyecto es el Ayuntamiento de Salorino.
El proyecto, en síntesis, consiste en la construcción de un punto limpio cerrado y acceso controlado, con solera de hormigón armado, zona de almacenamiento parcialmente cubierta, señalización y sistema de video vigilancia.
Se localiza en la parcela con referencia catastral 1516203PD7711N0001TL, en la Calle Viñas, n.º 2 de Salorino. Tiene una superficie total de 1.240 m2, de los que 400 m2 se dedicarán al punto limpio.
2. Tramitación y consultas.
Con fecha 21 de agosto de 2025, el Ayuntamiento de Salorino remitió a la Dirección General de Sostenibilidad, el documento ambiental del proyecto con objeto de determinar la necesidad de sometimiento al procedimiento de evaluación de impacto ambiental.
Dando cumplimiento a lo establecido en el artículo 75.1 de la Ley 16/2015, de 23 de abril, de protección ambiental de la Comunidad Autónoma de Extremadura, con fecha 11 de septiembre de 2025, la Dirección General de Sostenibilidad realiza consultas a las Administraciones Públicas afectadas y las personas interesadas que se relacionan en la tabla adjunta. Se han señalado con una X aquellas Administraciones Públicas y personas interesadas que han emitido respuesta.
|
Relación de consultados
|
Respuestas recibidas
|
|---|
|
Servicio de Conservación de la Naturaleza y Áreas Protegidas
|
X
|
|
Ayuntamiento de Salorino
|
-
|
|
Dirección General de Bibliotecas, Museos y Patrimonio Cultural
|
X
|
|
Dirección General de Urbanismo y Ordenación del Territorio. Servicio de Ordenación del Territorio.
|
X
|
|
Dirección General de Urbanismo y Ordenación del Territorio. Servicio de Urbanismo.
|
X
|
|
Servicio de Ordenación y Gestión Forestal. Dirección General de Gestión Forestal, Caza y Pesca.
|
X
|
|
Servicio Extremeño de Salud
|
-
|
|
Confederación Hidrográfica del Tajo
|
X
|
|
Sociedad Española de Ornitología, SEO Bird/Life
|
-
|
|
Asociación para la Defensa de la Naturaleza y de los Recursos de Extremadura (ADENEX)
|
-
|
|
Ecologistas en Acción
|
-
|
|
Asociación Ecologistas Extremadura
|
-
|
|
AMUS
|
-
|
|
GREENPEACE
|
-
|
|
Fundación Naturaleza y Hombre
|
-
|
Los informes emitidos por las distintas administraciones públicas se resumen a continuación:
— Con fecha 19 de septiembre de 2025, el Servicio de Urbanismo de la Dirección General de Urbanismo y Ordenación del Territorio emite informe que se resume a continuación:
Informa que la actuación se localiza en suelo urbano, por lo que no requiere de la previa calificación rústica prevista en el artículo 69 de la Ley 11/2018, de 21 de diciembre, de ordenación territorial y urbanística sostenible de Extremadura. Por ello corresponde al municipio de Salorino el control de legalidad de esta actuación, comprobando su adecuación a las normas de planeamiento y al resto de legislación aplicable.
— El día 29 de septiembre de 2025, el Servicio de Ordenación del Territorio de la Dirección General de Urbanismo y Ordenación del Territorio emite informe con la siguiente conclusión:
Informa que no se detecta afección sobre ningún instrumento de ordenación territorial en vigor (Plan Territorial, Plan de Suelo Rústico, Plan Especial de Ordenación del Territorio o Proyecto de Interés Regional).
También informa de que se halla en redacción el Plan Territorial de Sierra de San Pedro, ámbito territorial en el que se incluye el término municipal de Salorino, y que establecerá una nueva regulación cuando se apruebe definitivamente.
— Con fecha 29 de septiembre de 2025, la Dirección General de Bibliotecas, Museos y Patrimonio Cultural emite el informe y condicionado que se resume como sigue:
Analizada el área de afección del proyecto, no hay registro documental de la presencia de yacimientos arqueológicos en la parcela, si bien, durante la fase construcción se prescribe una medida preventiva para la protección del patrimonio arqueológico no detectado. Esta medida se recoge en el condicionado del presente informe.
— Con fecha 2 de octubre de 2025, la Confederación Hidrográfica del Tajo emite informe y condicionado como se resume a continuación:
Se informa que el área de estudio está comprendida dentro del área de captación de la zona sensible Embalse de Cedillo ES030ZSENESCM555 y las zonas de abastecimiento Patino-ES030ZCCM0000003228 y Fuente Lugar- ES030ZCCM0000003231 y CAP-2-ES030ZCCM0000003229, que se recogen como zonas protegidas en el PHT 2023-2027.
En relación con las aguas superficiales y subterráneas se informa que, aunque la actuación se localiza fuera de zona de policía de cauces y no se halla sobre masas de agua subterránea, ambas han de ser protegidas, por lo cual, en la puesta en práctica de las actuaciones deberán tenerse en cuenta las consideraciones expuestas en el informe para evitar afecciones negativas al dominio público hidráulico.
Se enumera una serie de condicionantes generales, que se han incluido en el condicionado del presente informe en los casos en que son de aplicación a este proyecto. Los condicionantes enumerados se resumen a continuación:
En relación con los aprovechamientos de agua se indican los requisitos para el abastecimiento de aguas directamente del dominio público hidráulico (aguas superficiales y/o subterráneas) y de la necesidad de título concesional de aguas previo.
En relación con saneamiento, vertidos y calidad del agua, se informa sobre la prohibición del vertido directo al Dominio Público Hidráulico, de las autorizaciones de vertido y sus requisitos.
Se refieren también indicaciones respecto a los depósitos de combustibles y redes de distribución de los mismos, respecto a los movimientos de tierras y el drenaje, a la impermeabilización de zonas donde se realicen otras actividades susceptibles de contaminar las aguas, respecto al parque de maquinaria, y sobre las captaciones de agua.
— El día 9 de octubre de 2025, el Servicio de Conservación de la Naturaleza y Áreas Protegidas de la Dirección General de Sostenibilidad informa como se resume a continuación:
La actuación no se encuentra dentro de los límites de ningún espacio incluido en Red Natura 2000, aunque si está en la Reserva de la Biosfera Transfronteriza Tajo-Tejo Internacional.
Informa también que no se ha detectado la existencia de valores ambientales destacables que puedan verse afectados en la zona donde se pretende llevar a cabo la actuación.
Por todo ello informa favorablemente la actividad, al considerar que no es susceptible de afectar de forma apreciable a los lugares incluidos en la Red Natura 2000, siempre que se cumplan las medidas indicadas, que se recogen en el condicionado del apartado 4 del presente informe.
El día 27 de noviembre de 2025, la Dirección General de Gestión Forestal y Defensa Contra los Incendios informa que no tiene competencias en suelo urbano.
3. Análisis del expediente.
Una vez analizada la documentación que obra en el expediente, y considerando las respuestas recibidas a las consultas, se realiza el siguiente análisis para determinar la necesidad de sometimiento del proyecto al procedimiento de evaluación de impacto ambiental ordinaria previsto en la subsección 2.ª de la sección 2.ª del capítulo VII del título I, según los criterios del anexo X, de la Ley 16/2015, de 23 de abril, de protección ambiental de la Comunidad Autónoma de Extremadura.
3.1. Características del proyecto.
El objetivo del proyecto es la construcción de una nueva instalación para poder dar un servicio adecuado de punto limpio, recibiendo los residuos municipales de aparatos eléctricos y electrónicos, pilas y baterías, lámparas y voluminosos.

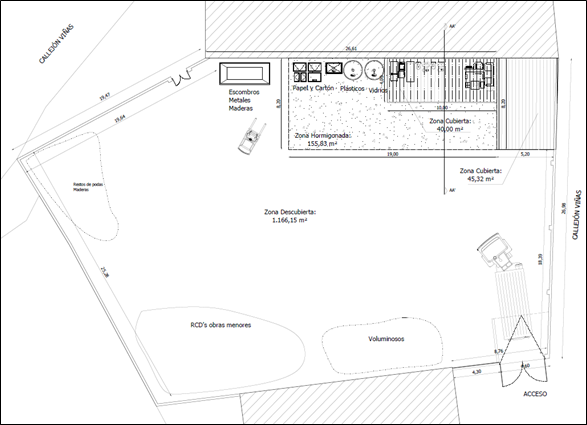
Localización del punto limpio. Fuente: Documento ambiental

Planta de distribución del punto limpio. Fuente: Documento ambiental
La superficie a ocupar por el recinto es de 400 m2, de forma irregular. Todo el recinto estará vallado mediante base de bloques de hormigón y malla metálica de 2 m de altura, y tendrá acceso a través de una misma puerta para todo tipo de vehículos. Dispondrá de una zona cubierta para proteger los residuos peligrosos del agua de lluvia. La zona de almacenamiento en contenedores contará con una solera de hormigón mientras que el resto de la parcela se nivelará con zahorra compactada.
Contenedores de recogida de materiales:
— Contenedores metálicos de 3,50x2,30x0,76 abierto 4 uds.
— Contenedores tipo caja de medidas 1,20x1,00x0,76 2 ud.
Si bien la red municipal de abastecimiento de agua, saneamiento y electricidad llegan hasta la parcela, el proyecto no incluye conexión a ninguna de estas.
3.2. Descripción del lugar.
El terreno es propiedad del Ayuntamiento y está localizado a las afueras de la localidad, en la calle Viñas n.º 2, próximo a la carretera EX - 303. Es un terreno urbano con una superficie total de 1.240 metros cuadrados, de los que el punto limpio ocupará 400 metros cuadrados.
El terreno se localiza entre dos naves del ayuntamiento, que se utilizado como acopio de materiales y restos de construcción, por lo que está parcialmente degradado.
El proyecto no está dentro de los límites de ningún espacio incluido en Red Natura 2000 y no se tiene conocimiento de restos arqueológicos en la zona.
3.3. Estudio de alternativas.
Se descarta la alternativa de no actuación por considerar que no disponer de punto limpio puede dar lugar a vertido incontrolado de residuos voluminosos en el medio natural y depósito de residuos peligrosos en los contenedores de la fracción resto de la localidad.
De las alternativas posibles de ubicación del punto limpio se elige esta al considerar que es propiedad del ayuntamiento, está cerca de los usuarios, no se han identificado afecciones relevantes al medio ambiente debidas al desarrollo de proyecto.
3.4. Características del potencial impacto.
— Red Natura 2000 y Áreas Protegidas.
El proyecto no se encuentra dentro de los límites de ningún espacio incluido en Red Natura 2000. Se considera que con la aplicación de medidas preventivas y correctoras, el proyecto no es susceptible de causar degradaciones sobre los hábitats ni alteraciones significativas sobre las especies por las que se han declarado los lugares de la Red Natura 2000, y que resulta compatible con los planes de protección vigentes de las especies presentes.
— Sistema hidrológico y calidad de las aguas.
En lo referente a zonas protegidas recogidas oficialmente en el PHT 2023-2027, el área en donde se desarrollan las actuaciones forma parte del área de captación de la zona sensible Embalse de Cedillo ES030ZSENESCM555 y las zonas de abastecimiento Patino-ES030ZCCM0000003228 y Fuente Lugar- ES030ZCCM0000003231 y CAP-2-ES030ZCCM0000003229.
La zona de actuación dista más de 500 metros del cauce hídrico más cercano, que el Arroyo del Lugar.
El proyecto no prevé vertidos, no se van a instalar servicios ni fosa séptica, ni se realizan actividades que generen líquidos residuales. Los derrames contaminantes accidentales quedarán retenidos en la solera de hormigón, hasta que se recojan y entreguen a un gestor de residuos autorizado. Con la aplicación de las medidas contempladas en este informe las masas de agua superficiales no se verán afectadas por el proyecto.
— Masas de agua subterránea.
La parcela no se encuentra sobre ninguna masa de agua subterránea catalogada y en el Mapa Hidrogeológico de Extremadura se califica el área como Depósitos volcánicos y volcano-sedimentarios de Ossa Morena y serie Flychoide, alternancia de grauvacas y lutitas del Complejo Esquisto-Grauváquico de la Zona Centro Ibérica. Semipermeable.
Con la aplicación de las medidas contempladas en este informe las masas de agua subterráneas no se verán afectadas por el proyecto.
— Suelo.
Considerando que la superficie de suelo a afectar es muy pequeña, la antropización previa de la parcela y las características constructivas del proyecto, la magnitud del impacto es leve y mediante la correcta aplicación de medidas preventivas y/o correctoras se reduce a un impacto aceptable para el medio edáfico.
— Fauna.
No se prevé la alteración de valores faunísticos relevantes. Se considera que el impacto no es significativo.
— Vegetación.
No hay vegetación actualmente en la parcela. El impacto sobre la vegetación no es significativo.
— Paisaje.
Para valorar el impacto sobre el paisaje hay que tomar en cuenta las dimensiones reducidas del proyecto, su localización junto a un núcleo urbano. Se estima que las medidas previstas serán suficientes para mitigar este impacto.
— Calidad del aire, ruido y contaminación lumínica.
La calidad del aire se verá afectada por la emisión de partículas derivadas del trabajo con maquinaria y por gases derivados de la combustión en los motores de vehículos y maquinaria, tanto en las obras como en la fase de funcionamiento del punto limpio. El proyecto no contempla iluminación y el ruido proviene del trabajo con maquinaria. Una vez concluidas las obras parte de esta afección desaparece. No obstante, se incorporan en este informe una serie de medidas para mitigar estos efectos.
— Patrimonio arqueológico y dominio público.
Si bien no existe registro de patrimonio arqueológico en el área, se introduce en el condicionado del presente informe de impacto ambiental las medidas que ha indicado la Dirección General de Bibliotecas, Museos y Patrimonio Cultural de cara a la protección del patrimonio arqueológico no detectado.
— Consumo de recursos y cambio climático.
La fase de obra supondrá un efecto directo, puntual y negativo sobre el cambio climático, al generarse emisiones debidas a la actividad. Este impacto se produce a corto plazo, durante poco tiempo y es reversible.
— Medio socioeconómico.
El impacto para este medio es positivo por el incremento de la actividad económica durante la construcción y especialmente por la mejora de la gestión de los residuos en el municipio.
— Sinergias.
Al tratarse de un proyecto en una zona puntual no se esperan efectos sinérgicos y/o acumulativos como consecuencia de su ejecución.
— Vulnerabilidad del proyecto. Riesgos de accidentes graves o catástrofes.
Con relación al apartado sobre la vulnerabilidad del proyecto, de conformidad con lo estipulado en la Ley 9/2018, de 5 de diciembre, por la que se modifica la Ley 21/2013, de 9 de diciembre, de evaluación ambiental, se cumplirá lo referido a la vulnerabilidad del proyecto frente a catástrofes naturales y accidentes graves del proyecto, así como las medidas para mitigar el efecto adverso significativo sobre el medio ambiente. La superficie del proyecto está incluida en la Zona de Alto Riesgo de Incendios Sierra de San Pedro.
En conclusión, se trata de una actividad que no tiene efectos adversos significativos sobre el medio ambiente, siempre que se apliquen las medidas recogidas en el apartado 4 Condiciones y medidas para prevenir, corregir y compensar los efectos sobre el medioambiente . Igualmente, el proyecto no afecta a espacios de la Red Natura 2000. Por ello, del análisis técnico se concluye que no es preciso someter el proyecto a evaluación de impacto ambiental ordinaria.
4. Condiciones y medidas para prevenir, corregir y compensar los efectos sobre el medioambiente.
4.1. Condiciones de carácter general.
Deberán cumplirse todas las medidas protectoras y correctoras descritas en el documento ambiental, en tanto no entren en contradicción con el condicionado del presente informe.
No se realizará ningún tipo de obra auxiliar sin contar con su correspondiente informe, según la legislación vigente.
El incumplimiento de las condiciones de este informe puede ser constitutivo de una infracción administrativa de las previstas en la Ley 16/2015, de 23 de abril, de protección ambiental de la comunidad autónoma de Extremadura.
El Servicio de Prevención, Calidad Ambiental y Cambio Climático, en cumplimiento de la Ley 16/2015, de 23 de abril, de protección ambiental de la Comunidad Autónoma de Extremadura, podrá exigir la adopción de nuevas medidas protectoras, correctoras o complementarias, al objeto de evitar o minimizar posibles impactos no detectados ni contemplados en el presente informe.
Si durante la ejecución del proyecto o la fase de explotación se detectara la presencia de alguna especie incluida en el Catálogo Regional de Especies Amenazadas de Extremadura que pudiera verse afectada por el mismo, se estará a lo dispuesto por el personal técnico de la Dirección General de Sostenibilidad, previa comunicación de tal circunstancia.
Se contactará con el Coordinador de los Agentes del Medio Natural de la UTV 3
(coordinacionutv8@juntaex.es ) antes del inicio de las obras, quien comprobará el cumplimiento del condicionado ambiental, así como posibles afecciones no contempladas. La conclusión de los trabajos se comunicará igualmente al Coordinador, con el fin de comprobar que se han realizado conforme a las condiciones técnicas establecidas.
Se informará a todo el personal implicado en la ejecución de este proyecto del contenido del presente informe de impacto ambiental, de manera que se ponga en su conocimiento las medidas que deben adoptarse a la hora de realizar los trabajos. Asimismo, se dispondrá de una copia del presente informe en el lugar donde se desarrollen los trabajos.
Deberá tenerse en cuenta la normativa en materia de incendios forestales, Decreto 260/2014, de 2 de diciembre, por el que se regula la Prevención de los incendios forestales en la Comunidad Autónoma de Extremadura y modificaciones posteriores, así como el Decreto 52/2010, de 5 de marzo, por el que se aprueba el plan de lucha contra incendios forestales de la Comunidad Autónoma de Extremadura (Plan INFOEX), y modificaciones posteriores.
Deberá aplicarse toda la normativa relativa a ruidos tanto en fase de obra como de explotación. Se cumplirá la normativa al respecto, entre las cuales se encuentran el Decreto 19/1997, de 4 de febrero, de Reglamentación de Ruidos y Vibraciones de Extremadura y la Ley 37/2003, de 17 de noviembre, del Ruido.
En la construcción del cerramiento, además de los condicionantes citados, se deberá atender a lo dispuesto en el Decreto 226/2013, de 3 de diciembre, por el que se regulan las condiciones para la instalación, modificación y reposición de los cerramientos cinegéticos y no cinegéticos en la Comunidad Autónoma de Extremadura.
No se ha proyectado dotar al punto limpio de abastecimiento de agua. Si se decidiera en algún momento realizar este abastecimiento mediante la red de distribución de abastecimiento municipal, será el ayuntamiento quien deberá conceder la autorización para dicha conexión. Si el abastecimiento (o parte de él) se realizara directamente del dominio público hidráulico (aguas superficiales o subterráneas), se deberá disponer de un título concesional de aguas, cuyo otorgamiento corresponde a la Confederación Hidrográfica y es a quién deberá solicitarse. Las modificaciones en el aprovechamiento de aguas de títulos concesionales en vigor, requieren también autorización por ese mismo organismo.
4.2. Medidas en la fase de ejecución.
No se permite arrojar, depositar, enterrar o incinerar basuras, escombros o residuos de cualquier origen y naturaleza en las zonas de actuación. Se incluyen aquí residuos y derrames producto de operaciones de mantenimiento o reparación de la maquinaria de obra. Se deberá proceder a la retirada de cualquier tipo de residuo no biodegradable generado por la maquinaria u operarios, los cuales se almacenarán en condiciones adecuadas de higiene y seguridad mientras se encuentren en su poder, debiendo ser entregados a un gestor autorizado para su tratamiento adecuado, y disponer de acreditación documental de dicha entrega. En todo caso se cumplirá lo establecido en la Ley 7/2022, de 8 de abril, de residuos y suelos contaminados para una economía circular.
Se dispondrá de un plan de actuación que, en caso de vertidos accidentales facilite la acción rápida y eficaz, contando con los medios adecuados (tierras absorbentes, aspiradora de líquidos, etc.) para inertizar vertidos y derrames. Si fuera preciso se procederá a la retirada del suelo afectado y tratamiento por un gestor autorizado.
Los residuos de construcción y demolición que se pudieran generar durante la ejecución del proyecto se deberán separar adecuadamente y entregar a una planta de reciclaje autorizada para su tratamiento, cumpliendo en todo caso lo establecido en el Real Decreto 105/2008, de 1 de febrero, por el que se regula la producción y gestión de los residuos de construcción y demolición, y en el Decreto 20/2011, de 25 de febrero, por el que se establece el régimen jurídico de la producción, posesión y gestión de los residuos de construcción y demolición en la Comunidad Autónoma de Extremadura.
Se ejecutarán las medidas necesarias para conseguir la integración paisajística de todas las instalaciones, mediante el empleo de materiales acordes al entorno, evitando el uso de materiales reflectantes u otros elementos llamativos y de afección paisajística. Una pantalla vegetal resultaría útil para minimizar este impacto.
Si durante la ejecución de las obras se hallasen restos u objetos de valor arqueológico, el promotor y/o la dirección facultativa de la misma paralizarán inmediatamente los trabajos, tomarán las medidas adecuadas para la protección de los restos y comunicarán su descubrimiento en el plazo de cuarenta y ocho horas a la Consejería de Cultura. Todas las actividades aquí contempladas se ajustarán a lo establecido al respecto en el título III de la Ley 2/99 de Patrimonio Histórico y Cultural de Extremadura y en el Decreto 93/97 regulador de la actividad arqueológica en Extremadura.
4.3. Medidas en fase de explotación.
Todas aquellas zonas de la instalación en donde vayan a desarrollarse actividades susceptibles de contaminar las aguas superficiales o subterráneas, deberán de estar debidamente impermeabilizadas y además confinadas para evitar desbordamientos hacia zonas no impermeabilizadas, o proceder de otras maneras tales que se evite la mencionada contaminación.
En relación a los vertidos:
— Queda prohibido con carácter general el vertido directo o indirecto de aguas y productos residuales susceptibles de contaminar las aguas continentales o cualquier otro elemento del dominio público hidráulico, salvo que se cuente con la previa autorización. Dicha autorización corresponde a la Confederación Hidrográfica del Tajo, salvo para los vertidos efectuados en cualquier punto de la red de alcantarillado o de colectores gestionados por las Administraciones autonómicas o locales o por entidades dependientes de las mismas, en los que la autorización corresponderá al órgano autonómico o local competente.
— En la zona de almacenamiento de residuos deberá construirse una cuneta perimetral en la solera de hormigón, que permita recoger derrames y vertidos accidentales.
— Deberá realizarse una adecuada gestión para evitar que las aguas de escorrentía pluvial incorporen contaminación adicional susceptible de contaminar las aguas continentales o cualquier otro elemento del dominio público hidráulico.
Deberán habilitarse las correspondientes áreas de almacenamiento para los residuos que llegan al punto limpio, en función de su tipología, clasificación y compatibilidad, para lo cual, el espacio dentro de la instalación estará compartimentado.
En el caso de que se recojan residuos peligrosos debe realizar la comunicación previa a esta Dirección General de Sostenibilidad según el artículo 35 de la Ley 7/2022, de 8 de abril, de residuos y suelos contaminados para una economía circular. Conforme al artículo 21 de esta ley, en el almacenamiento de estos residuos se tendrá en cuenta:
— El lugar destinado al almacenamiento de residuos peligrosos deberá estar protegido de la intemperie y disponer de sistemas de retención de vertidos y derrames. Los contenedores de residuos peligrosos líquidos serán estancos para evitar fugas y entrada de otros contenidos y estarán adecuadamente identificados.
— No superar el tiempo de almacenamiento de seis meses desde que se inicie el depósito de residuos en el lugar de almacenamiento debiendo constar la fecha de inicio en el archivo cronológico y también en el sistema de almacenamiento (jaulas, contenedores, estanterías, entre otros) de esos residuos. La gestión posterior de estos residuos la realizarán empresas que estén registradas conforme a lo establecido en dicha ley.
Se debe evitar la acumulación de residuos no controlados en el exterior del punto limpio para evitar entre otros aspectos el deterioro del paisaje.
4.4. Medidas para la restauración una vez finalizada la actividad.
Al final de la vida útil de la instalación se deberá devolver el terreno a un estado que recupere un uso ambientalmente viable cumpliendo las medidas siguientes.
— Retirada de todos los residuos que hubiera depositados en el punto limpio.
— Las edificaciones e instalaciones existentes servirán para otro uso municipal, siempre que cumplan con los requisitos necesarios y normativas vigentes. En caso de no tener posibilidad de reutilización, se desmantelarán todas las instalaciones, entregando los residuos a gestor autorizado. En este caso se acondicionará la parcela para que recupere las características que permitan los usos propios de un suelo rústico.
4.5. Programa de vigilancia y seguimiento ambiental.
Se realizará una labor de seguimiento ambiental del proyecto, en la que se verificará la adecuada aplicación de medidas preventivas y correctoras propuestas, informando a esta administración si se estima oportuno.
Cualquier incidencia ambiental destacada deberá ser instantáneamente comunicada a las autoridades competentes y a la autoridad ambiental a la mayor brevedad posible, emitiendo un informe extraordinario con la descripción de la misma, de las medidas correctoras aplicadas y de los resultados finales observados.
La actividad será sometida a inspección, vigilancia y control, a efectos de comprobar que se realice según las condiciones recogidas en este informe de impacto ambiental, Se analizará y determinará la eficacia de las medidas establecidas, así como verificar la exactitud y corrección de la evaluación ambiental realizada.
Teniendo en cuenta todo ello, así como la no afección del proyecto a espacios de la Red Natura 2000, esta Dirección General de Sostenibilidad a propuesta del Servicio de Prevención, Calidad Ambiental y Cambio Climático, resuelve, de acuerdo con la evaluación de impacto ambiental simplificada practicada conforme a lo previsto en la subsección 2.ª de la sección 2.ª del capítulo VII del título I, tras el análisis realizado con los criterios del anexo X de la Ley 16/2015, de 23 de abril, de protección ambiental de la Comunidad Autónoma de Extremadura, mediante la formulación del presente informe de impacto ambiental, que no es previsible que el proyecto de construcción de punto limpio en Salorino (Cáceres), cuyo promotor es el Ayuntamiento de Salorino, vaya a producir impactos adversos significativos sobre el medio ambiente, por lo que no se considera necesario someter el proyecto al procedimiento de evaluación de impacto ambiental ordinario.
El informe de impacto ambiental perderá su vigencia y cesará en la producción de los efectos que le son propios si, una vez publicado en el Diario Oficial de Extremadura, no se hubiera procedido a la autorización del proyecto en el plazo de cuatro años desde su publicación.
Su condicionado podrá ser objeto de revisión y actualización por parte del órgano ambiental cuando:
— Se produzca la entrada en vigor de nueva normativa que incida sustancialmente en el cumplimiento de las condiciones fijadas en el mismo.
— Cuando durante el seguimiento del cumplimiento del mismo se detecte que las medidas preventivas, correctoras o compensatorias son insuficientes, innecesarias o ineficaces.
De conformidad con lo dispuesto en el artículo 76.5 de la Ley 16/2015, de 23 de abril, de protección ambiental de la Comunidad Autónoma de Extremadura, el informe de impacto ambiental no será objeto de recurso alguno, sin perjuicio de los que, en su caso, procedan en vía administrativa o judicial frente al acto, en su caso, de autorización del proyecto.
El informe de impacto ambiental será objeto de publicación en el Diario Oficial de Extremadura y en la página web de la Consejería de Agricultura, Ganadería y Desarrollo Sostenible (http://extremambiente.gobex.es/ ).
El presente informe de impacto ambiental se emite a los solos efectos ambientales y en virtud de la legislación específica vigente, sin perjuicio de aquellas otras autorizaciones sectoriales o licencias que sean necesarias para la ejecución del proyecto.
Mérida, 15 de diciembre de 2025.
El Director General de Sostenibilidad,
GERMÁN PUEBLA OVANDO